SPIRALIFT® SR
The SPIRALIFT® SR Septage Receiving Station is a complete turnkey solution for the clean, organized receiving and processing of septage at municipal wastewater facilities.
Key Features
- Records Hauler Transactions
- Orderly Septage Receiving
- ID Card Access Control
- Full System Monitoring
- Prints Receipts
Established 1918 · Made in USA · Livingston, NJ
Product Overview
Description
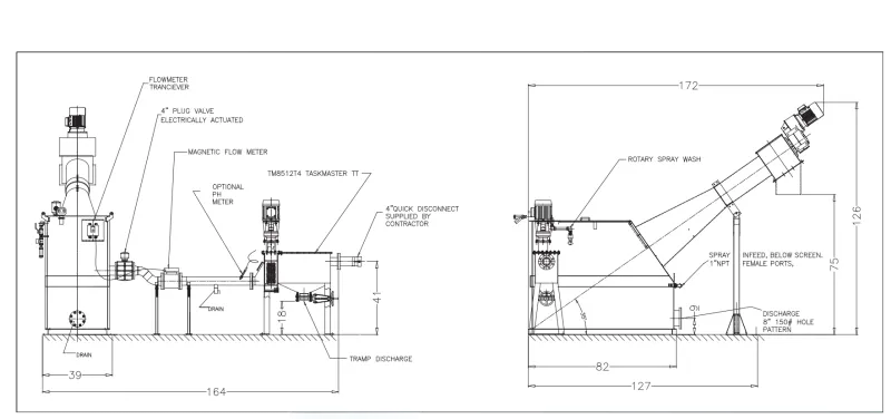
- Integrated Components
- Includes TASKMASTER® TT grinder with tramp trap, shaftless screw screen, ultrasonic level sensor, and stainless steel spray wash system.
- Control System
- Equipped with S270-SR Automatic Control System; optional S270-SRH Hauler Station Control System with HaulerLogic® software for transaction recording and access control.
- Construction Material
- Main housing, screw trough, and screen constructed of heavy stainless steel; shaftless auger made of heavy alloy steel.
- Processing Stages
- Available with one to four stages of processing to meet various application requirements.
The SPIRALIFT employs perfected shaftless screw technology to screen the solids from the liquids and then wash and compact the solids. This fully enclosed system features dependable operation, low operating costs and easy installation. These units are provided with between one and four stages of processing to meet a wide variety of application requirements.
The SPIRALIFT SR is provided with an S270-SR Automatic Control System, an optional S270-SRH Hauler Station Control System as well as HaulerLogic® administration, and a unique TASKMASTER® TT grinder with built-in tramp trap housing.
Options
Customize this product for your application
The S270-SRH Hauler Station Control helps to automate your septage receiving operation.
Features include:
- Records Hauler Transactions
- Orderly Receiving from Septage Haulers
- Controls Access with ID Cards
- Monitors and Synchronizes Full System
- Prints Receipts
- Interfaces with Optional HaulerLogic®
Software
Dimensions

See It in Action
SPIRALIFT SR In Action
Technical Specifications
- Integrated Components
- Includes TASKMASTER® TT grinder with tramp trap, shaftless screw screen, ultrasonic level sensor, and stainless steel spray wash system.
- Control System
- Equipped with S270-SR Automatic Control System; optional S270-SRH Hauler Station Control System with HaulerLogic® software for transaction recording and access control.
- Construction Material
- Main housing, screw trough, and screen constructed of heavy stainless steel; shaftless auger made of heavy alloy steel.
- Processing Stages
- Available with one to four stages of processing to meet various application requirements.
Need Help Choosing the Right Solution?
Our engineers have over a century of experience matching equipment to applications. Tell us about your process and we'll recommend the best fit.
Applications & Usage
Where This Product Is Used
More to Explore
Related Wastewater Screens

SPIRALIFT® SL
Interested In Learning More About Our Spiralift® SL?

SPIRALIFT® SLV
Interested In Learning More About Our Spiralift® SLV?

SPIRALIFT SI
Interested In Learning More About Our Spiralift® SI?

SPIRALIFT® SC Washer / Compactor
Interested In Learning More About Our Spiralift SC®?

SCREENMASTER® CS Bar Screen
Interested In Learning More About Our Screenmaster® CS Bar Screen?

SCREENMASTER® RT Rotary Drum Screen
The SCREENMASTER RT delivers reliable, efficient fine screening across municipal and industrial applications — built in the USA since 1918.
Trusted by Industry Leaders Worldwide
